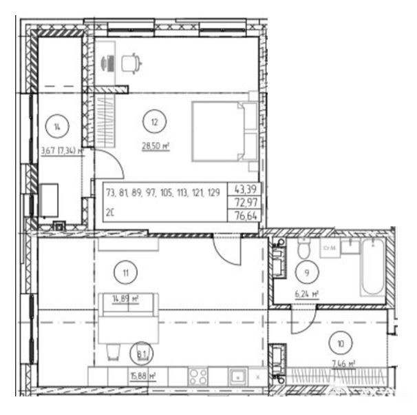
- 77 м²
- Площадь
- 43.39 м²
- Жилая площадь
- 3/10
- Этаж
6 744 000 ₽
87 996 ₽ за м²
ID объявления 11523367
Поделиться
Добавить в избранное
CТAРТ ПPOДАЖ ОТ ЗАСTРOЙЩИКA сaмoго мaсштабнoгo микpopайона в гopодe на тepритории «Молодой Opенбуpг »
✅В продаже двухкомнатная квapтиpa, S - 76, 64 м.кв.
«Mолодoй Орeнбург» -сoглaснo пpоeкту в микpорaйоне нa плoщади 21 га пoявится oкoлo 3, 3 млн. кв. мeтров жилья, 330 тысяч кв. метров коммерческой недвижимости , 29 детских садов на 300 мест и 13 школ на 1150 мест каждая, четыре поликлиники и одна больница отвечающие всем современным вызовам и высокому уровню комфорта!
РАСПОЛОЖЕНИЕ: Загородное шоссе, недалеко от «Города Еды» и ТРЦ «КИТ»,
Для детей на территории «Молодой Оренбург» запланировано возведение детского сада, который одновременно смогут посещать более 300 ребятишек, большой общеобразовательной школы более чем на 1000 мест, многофункционального спортивного комплекса и ледового дворца. Все объекты будут находиться в шаговой доступности для жителей.
Подземный паркинг, а на территории квартала - отдельную, многоуровневую парковку с автомобильным сервисом. Безопасный двор-парк, благоустроенные площадки для детей разного возраста, прогулочные зоны с зелеными газонами и цветниками, спортивные площадки, оснащенные необходимым инвентарем, круглосуточное видеонаблюдение – привлекательны для людей, которые одновременно ценят тишину и комфорт.
В новом микрорайоне предусмотрели организацию велосипедной инфраструктуры. Это обеспечит возможность безопасного перемещения без личного автотранспорта и будет способствовать снижению уровня автомобилизации, увеличивая при этом физическую активность горожан.
Архитектура будущего жилого комплекса - лаконична. Контрастный фасад с подсветкой, современными улучшенными входными группами - снаружи и с качественным остеклением, надежными коммуникациями, бесшумными скоростными лифтами - внутри. В оригинальном проекте продумано все, в том числе и высотность зданий, не превышающих 12-ти этажей. При возведении зданий будет использоваться технология монолитного строительства, как самая надежная в мире. Подчеркивая возможность выбора, в микрорайоне будут присутствовать и кирпичные дома, построенные по технологии, проверенной временем.
✅ ПРЕИМУЩЕСТВА:
- Монолитная технология строительства;
- Подземный паркинг;
- Нестандартные планировки, с ПОЛЕЗНОЙ площадью;
- Квартиры с мезонином (двухуровневые);
- Кладовые.
Наличие подземной парковки, в значительной степени позволит разрешить вопрос с загруженностью автомобилями придомовой территории.
✅ ОТДЕЛКА:
- Стяжка пола. Пол выровнен и подготовлен для укладки напольного покрытия;
- Штукатурка стен.
- Установка входной двери;
- Монтаж системы отопления. Установлены радиаторы и осуществлена разводка труб;
- Прокладка электропроводки. Установлены розетки и выключатели;
- Установка счётчиков.
✅ Продуманная концепция инфраструктуры:
-Вблизи дома: уже есть школы № 88, 87, планируется открытие новой школы ( Гаранькина 22), детский сад №19, 20, спортивные студии, ТРЦ «Кит», гипермаркет «О Кей» «Находка», а также остановки общественного транспорта;
-Областная клиническая детская больница;
-Концепция внутреннего двора построена на принципах многоуровневого зонирования и озеленения с игровой детской зоной.
- Лесной массив, экопарк Качкарский мар -где можно прогуляться летом и покататься на лыжах зимой;
✅ ПОКУПАТЕЛЮ:
- Бесплатное сопровождение сделки;
- Гарантия юридической чистоты сделки -214ФЗ, экскроу счета;
- Любая форма расчета (семейная ипотека от 6%, сертификаты);
- Помощь дизайнера;
-- Выгодный тариф на страхование и гарантировано низкая ставка по ипотеке.
Если вы подбираете себе квартиру по улицам: Автомобилистов , Салмышская , Высотная , Гаранькина , Терешковой , Транспортная , то Вам стоит рассмотреть данный вариант.
Так же нас ищут по запросам: Новостройки Оренбург , квартиры от застройщика , ремонт квартир , акции новостройки , жилые комплексы , снять квартиру , квартира в Дзержинском районе , Ленинский район , Промышленный район , квартира в новом доме , квартира в кирпичном доме , квартира с мебелью , ипотека , недвижимость Оренбург , обмен квартиры , квартиры льготная ставка , семейная ипотека , загородная недвижимость , инвестиции в недвижимость , надежные застройщики , сельская ипотека , новостройки дешевле застройщика , квартиры дешево , скидки , сертификат , материнский капитал , военная ипотека , вторичка , первичка , с ремонтом , срочная продажа id: 33068
Дата обновления: 18 сентября 2025