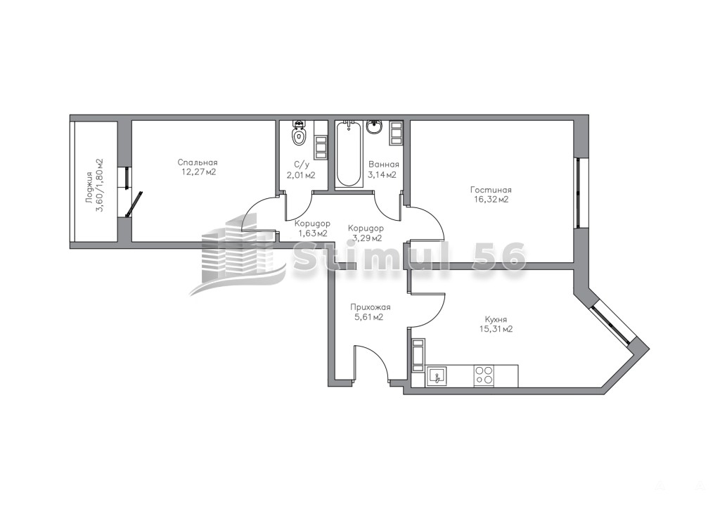
61 м²
Площадь
28,6 м²
Жилая площадь
15.40 м²
Площадь кухни
11/17
Этаж

6 138 000 ₽

100 000 ₽ за м²

ID объявления 8310929

Поделиться

Добавить в избранное

Арт. 56570230. ПОДХОДИТ ПОД СЕМЕЙНУЮ ИПОТЕКУ 6%

Жилой комплекс «Победа»

СДАЧА НОЯБРЬ 2026

ЖК расположен в тихом спальном районе города Оренбурга с развивающейся инфраструктурой. Жилой комплекс состоят из 14-17-этажных домов с торгово-офисными помещениями, расположенными по проезду Автоматики и улице Фронтовиков.
В пределах дворовой территории размещены: асфальтированные проезды с выделенными местами для парковок автомобилей, детские площадки, также площадки для отдыха взрослых, хозяйственная и физкультурная площадки с спортивными комплексами типа workout, зоны общего отдыха.

Ипотека: военная, семейная, IT-ипотека и т.д.

Помогаем с одобрением ипотеки.



Технология строительства: Панельное домостроение.

Количество этажей: 17.

Количество подъездов: 8

Количество лифтов в подъезде -1 пассажирский, 1 грузовой

Отделка: Черновая (шлифованные плиты стен, двойные стеклопакеты, пластиковые окна, застекленные балконы и лоджии, электропроводка разведена согласно ГОСТам и СНиПам, счетчики по воде и по электричеству и теплосчетчики в каждой квартире, входная дверь,

Высота потолков: 2.7 м2

Обратившись нам, мы найдем лучшее предложение для ВАС!

Мы работаем как единый отдел продаж от застройщиков

Помогаем приобрести квартиру в новостройке без комиссий и переплат*

В одном месте Вы получите всю объективную информацию о жилых комплексах и застройщиках города Оренбурга.

Более подробно о комплексе можно узнать по телефону.

Звоните, помогу забронировать квартиру

Дата обновления: 10 апреля 2026

Квартира Ипотека