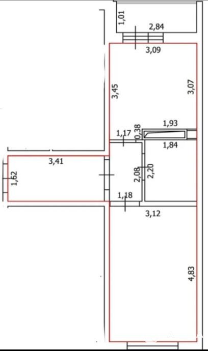
- 37 м²
- Площадь
- 15 м²
- Жилая площадь
- 11 м²
- Площадь кухни
- 3/17
- Этаж
4 050 000 ₽
109 460 ₽ за м²
ID объявления 12329614
Поделиться
Добавить в избранное
Продается 1- евро2х комнатная квартира, возможен вариант планировки под евро двух комнатную ( Кухня гостиная + спальня) Большая прихожая позволяет разместить высокий полноценный шкаф, Санузел совмещённый , место под стиральную машину. Кухня с выходом на лоджию, на лоджии поменены стеклопакеты. Квартира с черновой отделкой, дом сдан. Во дворе детский сад 110, большие детские площадки , парковка, магазины , аптеки , развивашки рядом . id: 44663
Дата обновления: 23 декабря 2025