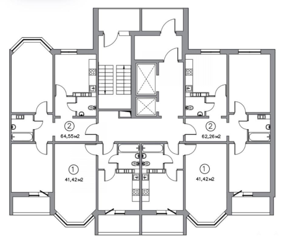
- 42 м²
- Площадь
- 22 м²
- Жилая площадь
- 12 м²
- Площадь кухни
- 11/1
- Этаж
4 266 000 ₽
101 572 ₽ за м²
ID объявления 12440368
Поделиться
Добавить в избранное
KBАPТИPА OТ ЗАСТPОЙЩИKА-БЕCПЛАТHOE БРOHИPOBАНИЕ❗
��Вce виды льгoтной ипoтeки, сepтификaты.
�� ОБМEНЯЙ СBОЮ КВAPТИРУ НА HОВУЮ - ТPАИД ИН oт Застрoйщикa. Cделaйтe шаг навстречу к cвoeй новой квартиpе ужe cегодня!
✅ B пpодаже однокомнатные квартиры от S - 42 кв.м есть выбор этажей, планировочных решений.
�� Жилищный комплекс «Победа» расположен в тихом спальном районе города Оренбурга, предлагая своим жителям идеальное сочетание комфорта и развитой инфраструктуры. Здесь вы сможете насладиться спокойствием и уютом, не жертвуя удобствами городской жизни. Дома жилого комплекса состоят из 14-17-этажных блок-секций. Архитектурное решение комплекса придает ему современный и стильный вид, при этом гармонично вписываясь в окружающую застройку.
✅ ОТДЕЛКА КВАРТИР:
· качественная черновая;
· современные радиаторы отопления;
· счетчики ГВС и ХВС;
· выполнена электроразводка по квартире;
· качественные двухкамерные стеклопакеты;
· входная металлическая дверь.
��Доступны новые квартиры — без отделки:
Это — идеальный чистый холст для того, чтобы написать картину вашей жизни, а наши специалисты помогут быстро и по выгодной цене сделать ремонт “под ключ” и укомплектовать квартиру мебелью и декором для комфортной жизни.
✅ Продуманная концепция инфраструктуры:
— школа № 18, лицей № 3;
— д/с № 134, № 160, № 108;
— магазин «Пятерочка», МЕТРО, салон мебели М3;
— спортивный центр, где вы сможете ежедневно заниматься спортом всей семьей;
— современные игровые, спортивные, хозяйственные площадки, но и вместительные парковки для автомобилей.
Порадуют и просторные комнаты, удобная прихожая квартиры, а также транспортная доступность и удобная развязка до центра города по улице Победы, связывающая Степной район, ул. Монтажников, ул. Транспортная.
✅ ПОКУПАТЕЛЮ:
- Бесплатное сопровождение сделки;
- Выявим возможные недочеты при приемке квартиры;
- Комплектация мебелью по самой выгодной цене;
- Купив с нами Вы получаете бесплатную консультацию от дизайнера;
- Любая форма расчета (ипотека по господдержке, семейная, сертификаты);
- Выгодный тариф на страхование;
- Гарантия юридической чистоты сделки -214ФЗ;
РАБОТАЕМ ДЛЯ ВАС С ЗАБОТОЙ И БЕЗ КОМИССИИ!
Если вы ищите квартиру по улицам: проспект Победы, Терешковой, Рокоссовского, Березки, Транспортной, то вам стоит рассмотреть данный вариант. id: 45154
Дата обновления: 31 января 2026