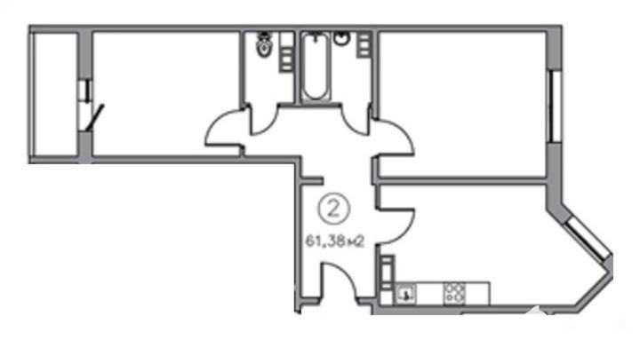
- 62 м²
- Площадь
- 29 м²
- Жилая площадь
- 16 м²
- Площадь кухни
- 9/17
- Этаж
5 462 820 ₽
88 110 ₽ за м²
ID объявления 12173297
Поделиться
Добавить в избранное
Продаётся уютная однокомнатная квартира площадью 62 квадратных метров нового восемнадцатиэтажного панельного дома, расположенного по адресу: город Оренбург, улица Фронтовиков,
Жилая площадь составляет 29 квадратных метров, кухня занимает 16 квадратных метров, что создаёт достаточно пространства для комфортного проживания.
Квартира идеально подойдёт для тех, кто ценит тишину и спокойствие, при этом имея всё необходимое рядом – поблизости находятся детские сады «Подсолнушки» и центр раннего развития детей, а также аптечные пункты «Здравсити» и другие. Для любителей ухоженного внешнего вида и красоты неподалеку расположены такие заведения как Студия Кератина amp; Ботокса, Samurai и барбершоп.
Для маленьких жителей двора оборудована детская площадка, где дети смогут весело проводить время на свежем воздухе. А удобная парковка во дворе избавит от проблем с поиском места для автомобиля.
Квартира предлагается без предварительного ремонта, что является отличной возможностью обустроить жильё согласно своим вкусам и предпочтениям. Совмещённый санузел добавляет дополнительное удобство в повседневное использование.
Приобретая эту квартиру, вы выбираете комфортное и спокойное проживание в новом современном доме в приятном районе города. id: 44402
Дата обновления: 27 октября 2025