Продажа дома
Оренбургская область, Оренбург, улица Ярославская, дом 6
- 107 м²
- Площадь
- 70 м²
- Жилая площадь
- 1
- Этажность
- 5 сот
- Площадь участка
5 900 000 ₽
55 141 ₽ за м²
ID объявления 12157109
Поделиться
Добавить в избранное
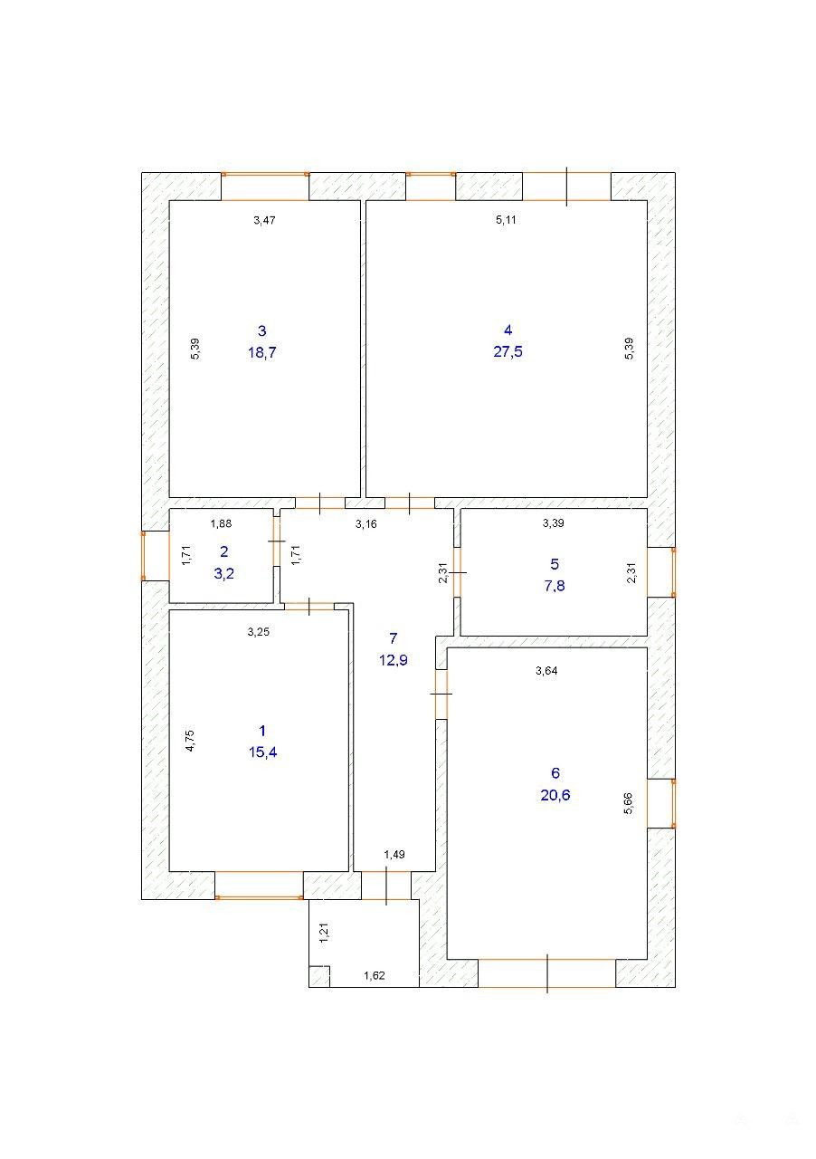
Предлагаем вашему вниманию одноэтажный дом площадью 107 кв.м, который станет идеальным решением для комфортной жизни. Дом выполнен с предчистовой отделкой, что позволяет вам самостоятельно выбрать финишные материалы и создать уникальный интерьер по своему вкусу.
Планировка дома продумана так, чтобы обеспечить максимальное удобство для проживания.
Просторная гостиная объединена с кухней, что создает уютное пространство для семейных встреч и приема гостей. Кроме того, дом включает несколько спален, которые обеспечат комфортный отдых, а также санузел, который можно оборудовать по своему усмотрению.
Участок площадью 6 соток предоставляет достаточное пространство для обустройства сада, зоны для отдыха или площадки для барбекю. Вы сможете наслаждаться свежим воздухом и природой, не покидая своего двора.
Дом расположен в тихом и спокойном районе, что делает его идеальным местом для семейной жизни. Это отличный выбор для тех, кто ценит комфорт и хочет создать уютное пространство для своей семьи. id: 44310
Дата обновления: 22 октября 2025