Продажа дома

Оренбургская область, Ленина п., Покровская ул., 18

180 м²
Площадь
40.5 м²
Жилая площадь
29 м²
Площадь кухни
8 сот
Площадь участка
1/1
Этаж

13 500 000 ₽

75 000 ₽ за м²

ID объявления 12406474

Поделиться

Добавить в избранное

ГОТОВНОСТЬ ДОМА ИЮЛЬ 2026 г

ФУНДАМЕНТ ЗАЛИЛИ ЛЕТО 2025 г

СЕЛЬСКАЯ ИПОТЕКА, Семейная ипотека!

Есть готовый аналог данного дома!


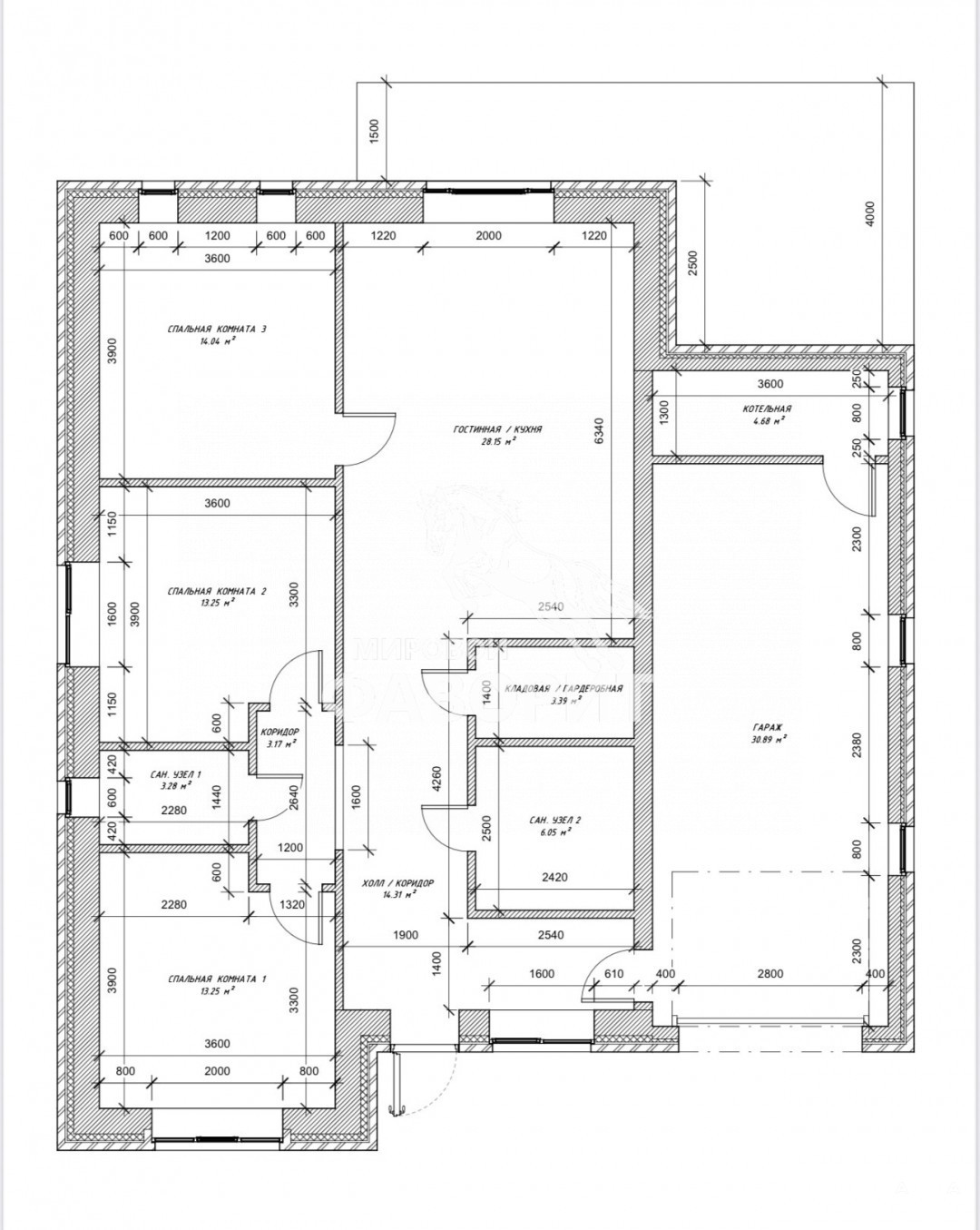
Капитальный кирпичный дом площадью около 150 кв м плюс две большие веранды, ( итого около 180км м) расположенный в п Заречье ул. Покровская, участок 18, Оренбургский район. Идеально подойдёт для большой семьи, особенно с учётом того, что объект подходит под семейную ипотеку.

Дом будет построен на свайном фундаменте с усиленным армированием — 8 рядов арматуры с шагом 20 см. По всему дому залита система тёплого пола, включая зоны у окон — предусмотрено всё до мелочей.

Будет выполнена качественная гидроизоляция, проведено уличное освещение. Заложены все коммуникации под возможное строительство бани или других построек. С одного котла можно будет отапливать дополнительные помещения — инженерные решения продуманы заранее.

Стены будут утеплены 100 мм утеплителем, выполнена облицовка кирпичом с вентиляционным зазором 3 см. Установлены вентиляционные шахты. Крыша утеплена 200 мм.

Гаражные ворота — панорамные. Установлена качественная входная дверь. Дом будет сдан в предчистовой отделке: всё отшпаклёвано, готово под чистовую отделку и вашу индивидуальность.

Планируемая готовность — июль 2026 года.

Надежное строительство, продуманная инженерия, простор и комфорт — этот дом станет идеальным вариантом для жизни за городом.

Звоните и приезжайте на просмотр — покажем в удобное для вас время.
Арт. 128979166

Дата обновления: 23 января 2026